На Ново-центральному Баранівському кладовищі в Сумах будуватимуть другу частину проєкту Алеї слави. Серед запланованих об'єктів — меморіальний «Пагорб пам'яті». Тендер на виконання робіт виграло ПАТ «Сумбуд», яке запропонувало зробити це за понад 32 мільйони гривень, хоча інші учасники торгів були готові виконати замовлення за меншу ціну. Що саме планують збудувати на Баранівському кладовищі й чому договір уклали з «Сумбуд» — далі.

Яким має бути «Пагорб пам'яті»

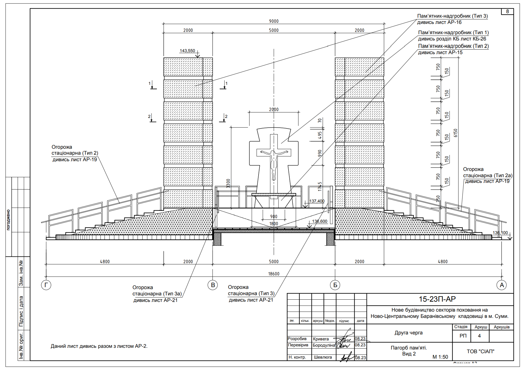
У тендерній документації є архітектурний проєкт будівництва нових секторів поховань на Баранівському кладовищі. На кресленнях можна побачити, яким має бути «Пагорб пам'яті» з надгробками, огорожами, пандусами, лавами.

Як писали раніше на сайті Сумської міськради, посередині пагорба, перед своєрідним вівтарем у вигляді козацького хреста, передбачають жертовний камінь із мапою України в кордонах 1991 року.

За умовами тендеру завершити будівництво меморіального комплексу мають до 22 грудня 2025 року.

Виконавець робіт ПАТ «Сумбуд» будує й першу чергу секторів поховань на Баранівському кладовищі. Попередній тендер на понад 6,7 мільйона гривень вони виграли в січні цього року. Втім, у червні ціну скоригували, й тепер «Сумбуд» отримає додаткові 2,7 мільйона гривень. Першу чергу поховань вони мають завершити до 22 грудня 2025 року.

photo 2024 11 15 15 16 37
План Алеї слави на Баранівському кладовищі, перша й друга черги робіт

Чому відмовили іншим учасникам торгів

Очікувана вартість будівництва другої черги секторів поховань — 33 мільйони 699 тисяч гривень. Переможець тендеру ПАТ «Сумбуд» має виконати роботи за 32 мільйони 142 тисячі гривень.

У торгах брали участь й інші підприємства. ТОВ «Індастріал транс груп» пропонувало за роботу 28 мільйонів 538 тисяч гривень, але їм відмовили через невідповідність поданих документів із тими, які вимагали.

Комунальне підприємство Сумської міськради пропонувало виконати роботи за 28 мільйонів 675 тисяч гривень, але їм відмовили, зокрема, через те, що КП не надало розрахунки витрат за бетонування одного із секторів проєкту.

Вас може зацiкавити

Транспорт в Сумах
На Сумщині працює 508 перевізників, 88% з них — ФОП: дослідження ринку пасажирських перевезень
Скільки перевізників працює на Сумщині
Ожеледиця в Сумах
Максимально напружити м’язи й «стиснутися в грудку». Як правильно падати під час ожеледиці
У Сумах і області піднялася температура, внаслідок чого на дорогах і тротуарах ожеледиця. У такий період є підвищений ризик травмувань. Тож лікар Сумського центру контролю та профілактики хвороб Олексій Мукмєнєв розказав, як вберегтися під час ожеледиці, що робити в момент падіння і після. Поради лікаря про безпеку на слизьких дорогах За словами лікаря, для пересування […]
Українські вечорниці в Сумах
Як раніше на Слобожанщині святкували весілля? У Сумах проведуть тематичні вечорниці
1 лютого о 14:00 в Сумській міській галереї проведуть українські вечорниці. Цього разу вечір буде присвячений весільним традиціям. Тут можна буде подивитися, якими раніше були українські сукні й рушники, звичаї та обрядовість. Про це Цукру повідомила працівниця Агенції промоції «Суми» Анастасія Волкова. Простір пам’яті, символів і сенсів У міській галереї періодично проводять вечорниці, однак весільних […]
картини учнів Сумської художньої школи на виставці в Японії
«Коли дитина знає, що її роботу бачать у світі, у неї виростають крила». На виставці в Японії представили картини учнів із Сум 
А Суми отримали від Японії роботи в техніці гризайль
punkt nezlamnosti
Перевірили стан пунктів незламності з «Дії» в Сумах. Нормам відповідають не всі
Чи всі пункти незламності — незламні?
Робота чат-боту 14-80
Понад 14 тисяч сум’ян скористалися чат-ботом «15-80» для звернень до місцевої влади
Як працює чат-бот «15-80»